Состав проекта:
Дизайн-проект включает в себя:
— Обмер помещений
— Планировка (перепланировка)
— Концептуальный (стилевой) коллаж
— Реалистичная 3-d фотовизуализация
— Рабочие чертежи
— Ведомости


3д визуализация
Фотореалистичные изображения.
В нашей 3D-визуализации мы используем реальные материалы и мебель, которые можно приобрести или изготовить на заказ

Набор рабочих чертежей для бригады
— обмерный план (размеры существующих помещений)
— кладочный план (размеры всех возводимых перегородок и ниш)
— план покрытий пола, с раскладкой плитки и количеством
— план потолка с его геометрией и количеством материала
— план напольных и потолочных плинтусов, необходимый метраж
— план дверных проемов, подбор дверей в магазинах
— план розеток и выключателей с привязками
— план привязки светильников, подбор в магазинах
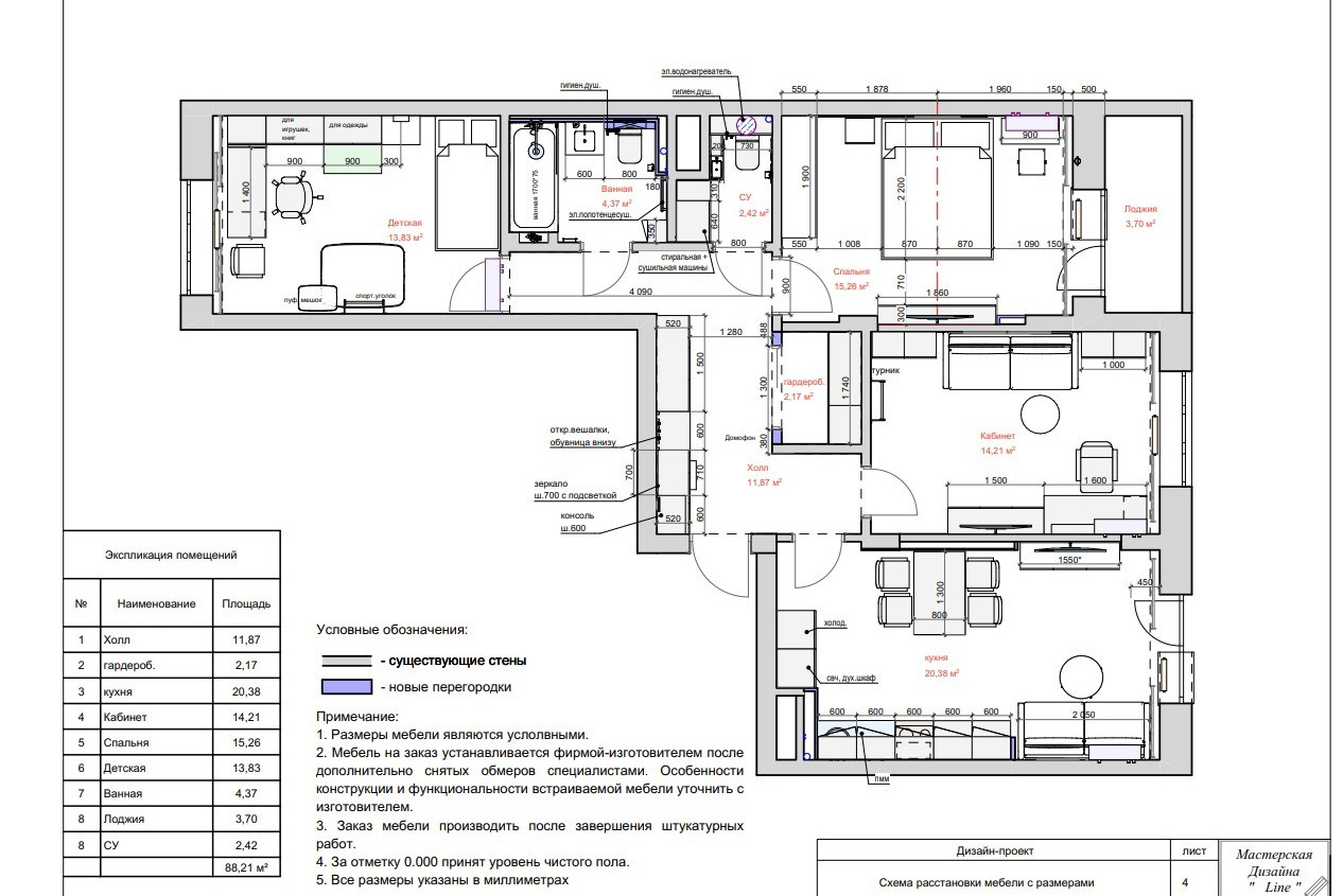
— расстановка мебели, подбор в магазинах
— расстановка сантехнического оборудования
— подбор в магазинах ванны/душевой/унитаза/биде/раковины
— развертка стен с обозначенным покрытием и необходимое количество
— раскладка плитки в санузлах и др. помещениях
— чертежи мебели индивидуального изготовления
Спецификации и поставщики
Все сопутствующие спецификации по мебели, светильникам, и отделочным материалам с указанием необходимого количества, артикулов и адресов магазинов входят в проект. Для вас мы так же отправляем файл с контактами проверенных поставщиков.

Вопросы и ответы
Частые вопросы от клиентов и ответы на них. Если у вас останутся вопросы, пишите мне в соцсетях.
ВЫ РАБОТАЕТЕ ПО ВСЕЙ РОССИИ?
Да, мы работаем по всей России он-лайн. Наши бизнес-процессы организованы таким образом, что мы можем вести несколько проектов в разных городах.
СКОЛЬКО СТОИТ ДИЗАЙН-ПРОЕКТ?
Стоимость планировочного решения и дизайн-проекта зависит от площади помещения и состава проекта.
КАКИЕ СРОКИ ВЫПОЛНЕНИЯ?
Срок планировочного решения — от 7-15 дней. Срок выполнения полного дизайн-проекта — от 2 мес
Нужно учитывать, что на проекты есть предварительная запись. Срок ожидания — 3-4 недели. Поэтому если нужен проект к дате, рекомендуем обращаться заранее.
КАКИМ ОБРАЗОМ ОСУЩЕСТВЛЯЕТСЯ УДАЛЁННАЯ РАБОТА?
Заказчик либо осуществляет замеры сам по нашей инструкции, либо нанимает специалистов. Далее вся работа организуется с помощью мессенджеров и электронной почты.
ГДЕ НАЙТИ МАТЕРИАЛЫ/СВЕТИЛЬНИКИ/МЕБЕЛЬ ИЗ ПРОЕКТА?
В альбом полного дизайн-проекта входят ведомости отделочных материалов, светильников, технического оборудования, корпусной мебели, сантехники с указанием названий, артикулов и количества каждого предмета. Мы работаем с российскими производителями среднего ценового сегмента.
КОГДА НУЖНО ЗАКАЗЫВАТЬ ДИЗАЙН-ПРОЕКТ?
Чем раньше, тем лучше. Чтобы придумать, создать, начертить интересный проект требуется значительное время, поэтому мы не берем в работы объекты, если проект нужен был вчера. Важно то, что никакие строительные работы нельзя проводить без полностью готового и сданного альбома дизайн-проекта.
Остались вопросы?
Связаться